Architectural Services
Drawings that get built.
Our architectural service is the heart of the studio — from feasibility sketches to fully approved planning and building regulation packages.

Approach

Every site has a story. Every brief has a person behind it. We start by listening.
Having completed hundreds of planning and building regulation applications over the last 30 years, you can be sure your project starts off on the right path.
What's included
A clear path from idea to approval.
Site & Feasibility Studies
Understanding what's possible on your plot — constraints, opportunities and rough costs.
Concept Design
Sketches and options that explore how the project could come together.
Planning Drawings
Detailed plans, elevations and supporting documents prepared for submission.
Planning Submission & Liaison
We submit, monitor and respond to the local authority on your behalf.
Building Regulations Drawings
Technical packages that satisfy building control and inform the build team.
Structural Coordination
Working alongside structural engineers to keep everything joined up.

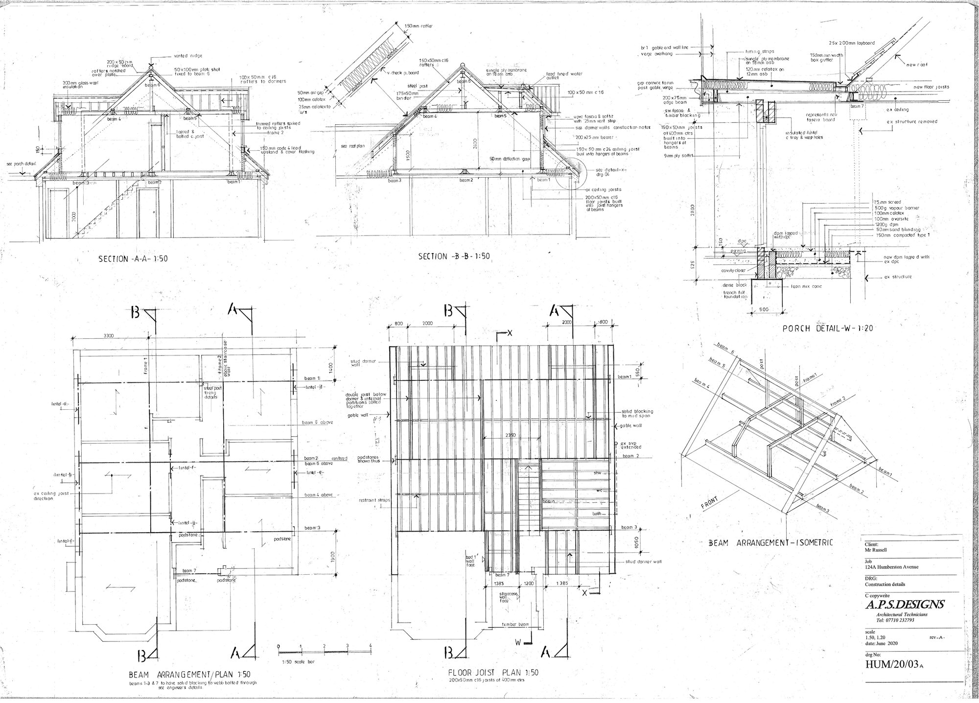
Sample drawing
Building regulations, drawn properly.
Every building regs package we issue is hand-detailed at 1:50 and 1:10 — sections, construction details, beam arrangements and connections. Drawings the builder can actually build from, and building control can sign off without queries.
Architectural services
Everything you need, under one roof.
- —Architectural drawings — design, planning and construction drawings
- —Planning applications & Certificates of Lawfulness
- —Structural calculations
- —Local authority approvals & completion certificates
- —Building specifications
- —Building programmes
- —Build costings & Bills of Quantities
Common Projects
What we draw most often.

House Extensions
Single and double-storey, kitchen-diners, garden rooms and wraparounds.

Bespoke New Builds
Self-build family homes designed around the site and how you live.

Remodels & Renovations
Reworking existing homes — opening up spaces, adding light, modernising layouts.
Related
Next stage
Project management & full build
Once drawings are approved, we can take the project to completion.
See it in practice
Recent Cornwall projects
Approved planning sets, building regs drawings and built work.
Where we work
Areas we cover in Cornwall
Penzance, St Ives, Truro, Falmouth and the rest of the county.
Ready when you are
