
Near Truro · Full Build Package
Coastal New Build
A bespoke contemporary family home set into the Cornish hillside, designed and built end to end.
Selected Work
A small selection of recent work from across Cornwall. Each project begins with a conversation about the site — and ends with a home that belongs to it.

Current Project · On the drawing board
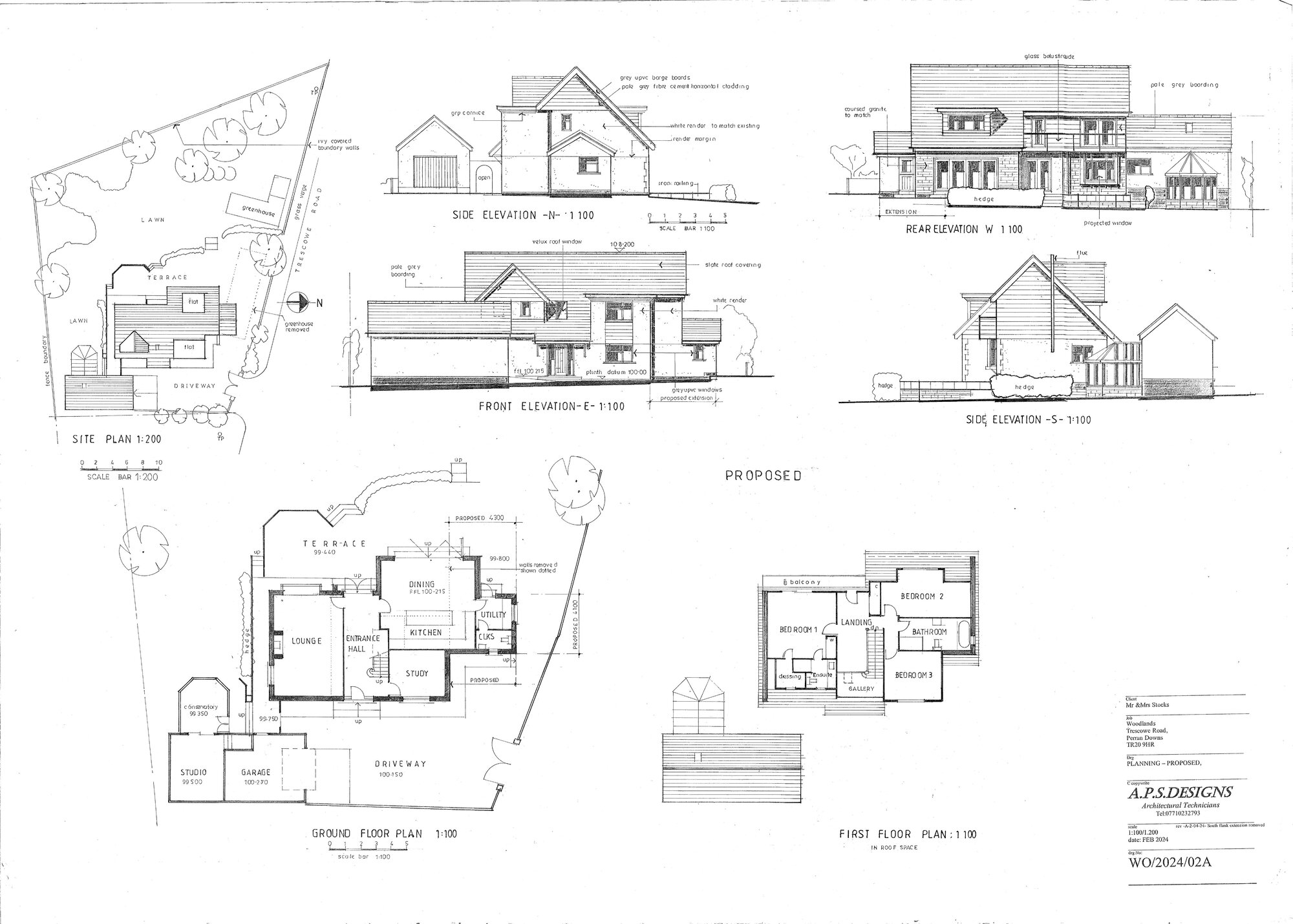
A substantial remodel and first-floor extension to a single-storey home on Trescowe Road. The existing bungalow is being reworked into a contemporary family house — opening up the ground floor and adding a new pitched-roof first floor with three bedrooms, gallery landing and balcony.
Client
Mr & Mrs Stocks
Stage
Planning approved · Building regs issued

Planning — Proposed
Site plan, elevations and floor plans for the proposed scheme. Drawing WO/2024/02A.

Floor Joist & Roof Details
Roof plan, floor joist plan and connection details for building regulations. Drawing WO/2024/04.

Planning — Existing
Existing site plan, elevations and floor plan as surveyed. Drawing WO/2024/01.

Cross Sections & Details
Cross sections through the property with construction details. Drawing WO/2024/05.
On site · May 2026

New pitched slate roof, gable and flat-roof dormer taking shape over the original footprint.

Front elevation showing the new dormer, chimney and reworked roofline against the original cottage line.

Near Truro · Full Build Package
A bespoke contemporary family home set into the Cornish hillside, designed and built end to end.

St Ives · Architectural & Build
Open-plan kitchen and dining extension opening directly onto the garden through full-height glazing.

Penzance · Architectural Services
Sensitive remodel of a traditional Cornish stone cottage — opening up the layout while keeping the soul.

West Cornwall · Full Build Package
A long, low family home detailed in local granite and white render, framed by uninterrupted views.